top of page

CASA EN EL CLOT
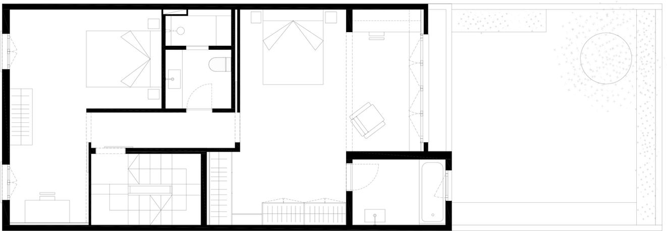
La vivienda se sitúa en un pasaje peatonal del barrio del Clot de Barcelona. Se trata de la rehabilitación integral de una vivienda unifamiliar del año 1930 de una planta, que en los años ´60 se amplió con una planta más. En la estructura de la casa se notan las dos épocas: en la planta baja techos altos con estructura de vigas de madera y bovedillas planas cerámicas; en la planta primera, techos más bajos y forjado de vigas de hormigón. Completan la vivienda un patio y una terraza.
Ubicación: Barrio del Clot, Barcelona
Superficie: 218 m2
Año de construcción: 1930
Año de reforma: 2021-2023
Fotografías: Marcela Grassi
bottom of page























































