top of page

GAVÁ
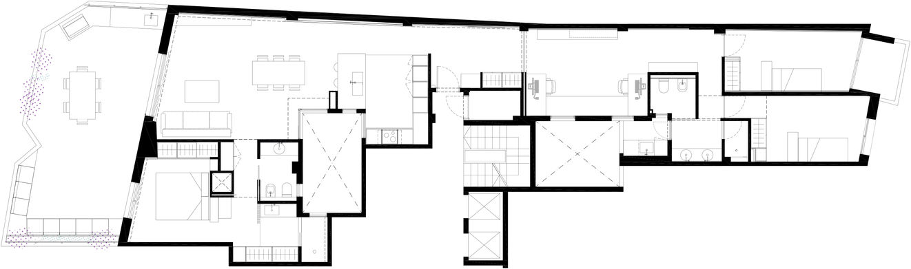
Una reforma integral en el ático de un edificio de los años 70, en el barrio barcelonés de La Bordeta, transforma dos viviendas en un único hogar cálido, funcional y lleno de luz. Se trata de un proyecto donde la memoria personal, la eficiencia energética y el diseño a medida conviven con naturalidad.
Ubicación: Calle Gavá, Barcelona
Superficie: 140 m2
Año de construcción: 1998
Año de reforma: 2024
En colaboración con: Isabel Velasco Coocoolab
Fotografías: Marcela Grassi
bottom of page
















































